Участники
Ознакомиться с полным списком участников выставки можно по ссылке
АГУНА Тепло, ООО
О компании
О продуктах / решениях / услугах
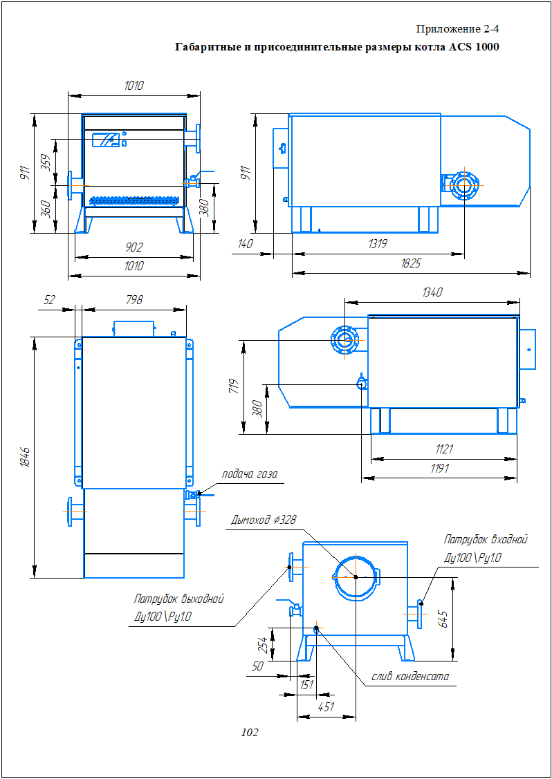
Котел ACS 1000 CLASSIC мощностью 1000 кВт
Котел ACS 1000 CLASSIC мощностью 1000 кВт - прорыв на рынке теплового оборудования. Модули мощностью 1000 кВт можно устанавливать в вертикальные стойки до 3-х шт. Сборка из 3-х вертикально расположенных модулей общей мощностью 3,0 МВт занимает площадь всего 1,7 кв. м. Котлы оборудованы современным контроллером управления ACS 211, автоматический контроль герметичности клапанов перед розжигом и датчиков и систем безопасности котла. Используется ПИД регулятор температуры / мощности котла.
КОТЛЫ ОТОПИТЕЛЬНЫЕ ВОДОГРЕЙНЫЕ ГАЗОВЫЕ типа ACS 1000 марки «CLASSIC»
Котел ACS 1000 CLASSIC мощностью 1000кВт - прорыв на рынке теплового оборудования. Модули мощностью 1000кВт так же можно устанавливать в вертикальные стойки до 3х шт. Сборка из 3х вертикально расположенных модулей общей мощностью 3.0 МВт занимает площадь всего 1.7 кв. м.
Котлы оборудованы современным контроллером управления ACS 211 с жидкокристаллическим четырехстрочным русифицированным дисплеем с подсветкой.

